Ծրագրի մասին

ՀՀ Կոտայքի մարզի Հրազդան համայնքի Լեռնանիստ բնակավայրի խմելու ջրամատակարարման համակարգի II փուլի կառուցում

ՀՀ Կոտայքի մարզի Հրազդան համայնքի Լեռնանիստ բնակավայրի խմելու ջրամատակարարման համակարգի II փուլի կառուցում




Ծրագրի մասին

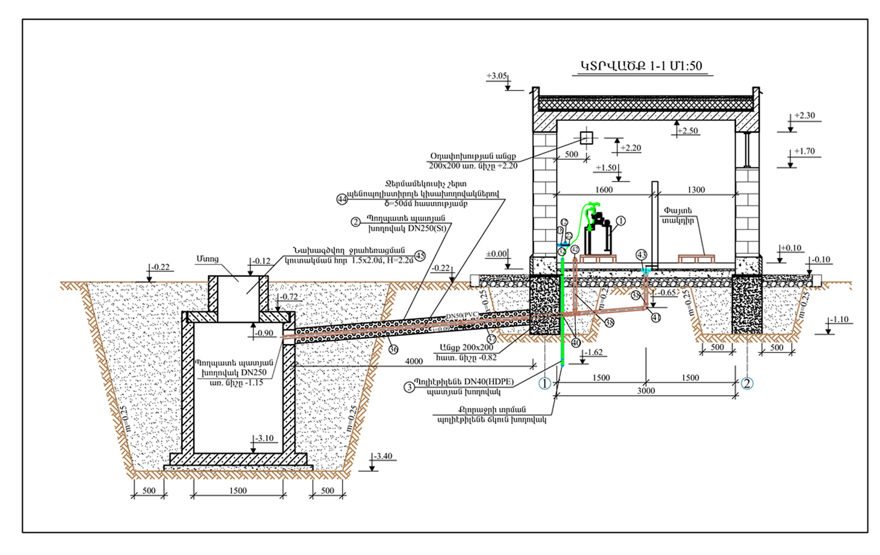
Լեռնանիստ բնակավայրի խմելու ջրամատակարարման համակարգի բարելավման նպատակով մշակվել է աշխատանքային նախագիծ, որի շրջանակներում նախատեսվել է․

  • գոյություն ունեցող խորքային հորի 2.5մ բարձրությամբ տուֆ քարե շարվածքով տնակի նախագծում,
  • գոյություն ունեցող 530.0խմ ծավալով ՕԿՋ-ի վերանորոգում, ե/բ չոր խցի նախագծում,
  • քլորակայանի շենքի նախագծում՝ կալցիումի հիպոքլորիդով (փոշի) աշխատող քլորացման սարքավորումների մոնտաժմամբ, արտաքին և ներքին էլեկտրամատակարարման համակարգերի նախատեսմամբ,
  • ՕԿՋ-ի սանիտարական պահպանության գոտու 40.0 մ ընդհանուր երկարության մետաղական ցանկապատի նախագծում, ինչպես նաև տարածքի բարեկարգում,
  • գոյություն ունեցող բաշխիչ ցանցում օդահեռ և թողարկ ե/բ հորերի նախագծում,
  • 32–75մմ տրամագծի պոլիէթիլենե խողովակներից 959.0մ երկարության բաշխիչ ցանցի նախագծում` ճնշման կարգավորիչ, փականային և հրշեջ հիդրանտի ե/բ հորերով,
  • 695 անհատական տնային մուտքագծերի և ջրաչափական հանգույցների նախագծում։

Մանրամասներ

Ֆինանսավորող
ՀՀ Պետական Բյուջե
Պատվիրատու
Հրազդանի համայնքապետարան
Համակատարող
--
Երկիր
Հայաստան
Տարեթիվ
Հոկտեմբեր 2025թ. – Նոյեմբեր 2025թ.
Ծառայություն
Նախնական և Աշխատանքային Նախագծերի Մշակում
Լրացուցիչ Տեղեկություններ
Վերադառնալ Ծրագրերի Ցանկին